Un accident de travail doit être déclaré rapidement pour préserver vos droits. Le salarié dispose de 24 heures pour informer son employeur, et celui-ci a 48 heures pour transmettre la déclaration à la CPAM. Ces délais encadrent la prise en charge et évitent les refus. En cas de situation particulière comme une hospitalisation ou un oubli, des ajustements restent possibles.
Quel est le délai légal pour déclarer un accident de travail ?
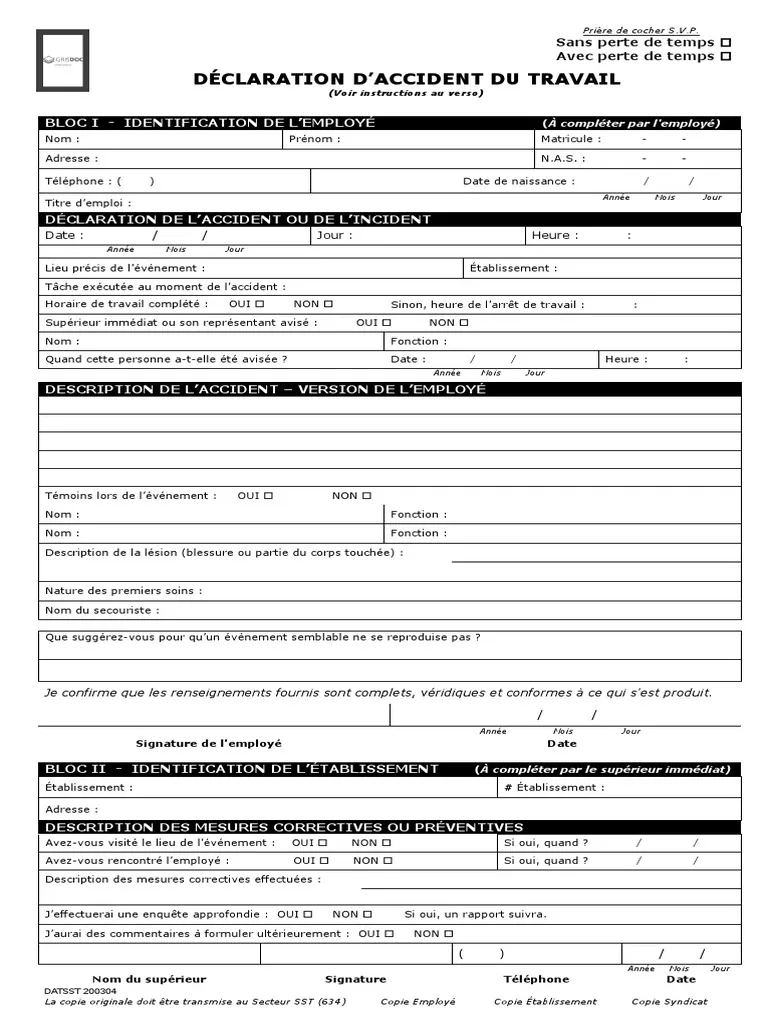
Le cadre légal repose sur deux délais distincts. Le premier concerne la personne blessée, le second l’entreprise.
| Acteur | Délai à respecter |
|---|---|
| Salarié | 24 heures pour informer |
| Employeur | 48 heures pour déclarer à la CPAM |
Ce fonctionnement garantit une prise en charge rapide. La déclaration permet l’ouverture du dossier, le remboursement des soins et l’indemnisation en cas d’arrêt.
Combien de temps le salarié a-t-il pour prévenir son employeur ?

La règle reste simple : l’information doit être donnée dans les 24 heures. Ce délai commence dès l’apparition de l’événement ou des douleurs liées à l’activité professionnelle.
Une situation fréquente concerne un accident léger qui s’aggrave. Une douleur au dos peut sembler bénigne sur le moment, puis devenir invalidante le lendemain. Le signalement reste possible, à condition d’expliquer le lien avec le travail.
En cas d’impossibilité, comme une hospitalisation, le délai s’adapte. La priorité reste la preuve du lien entre l’activité et la blessure.
Quel est le délai pour que l’employeur fasse la déclaration à la CPAM ?
L’entreprise dispose de 48 heures après avoir été informée. Ce délai exclut les dimanches et jours fériés.
La déclaration se fait auprès de la caisse d’assurance maladie, qui analyse ensuite le dossier. Elle vérifie les circonstances et valide ou non la reconnaissance.
Un retard peut entraîner une pénalité financière pour l’employeur. Pour le salarié, cela ralentit surtout le traitement du dossier et la prise en charge.
Que se passe-t-il si le délai de déclaration est dépassé ?
Un dépassement complique la reconnaissance mais ne bloque pas systématiquement la procédure. La caisse examine les éléments fournis.
Plusieurs conséquences peuvent apparaître :
- un refus si le lien avec le travail reste flou
- un délai de traitement plus long
- une contestation de l’employeur
Dans certains cas, la situation reste régularisable avec des preuves solides comme un certificat médical daté ou des témoignages.
Peut-on déclarer un accident de travail après plusieurs jours ?

Une déclaration tardive reste possible. Le point central repose sur la capacité à prouver l’origine professionnelle.
Un exemple concret concerne une chute sans témoin. La douleur apparaît progressivement, puis un médecin établit un lien avec l’activité. La déclaration intervient alors plusieurs jours après.
La caisse analyse :
- la cohérence du récit
- les documents médicaux
- les éléments professionnels
La reconnaissance dépend de la solidité du dossier.
Quels sont les cas où le délai peut être prolongé ?
Certaines situations justifient un dépassement du délai initial. Elles concernent souvent une incapacité à agir immédiatement.
| Situation | Conséquence sur le délai |
|---|---|
| Hospitalisation | Report accepté |
| Accident sans témoin | Analyse approfondie |
| Symptômes tardifs | Délai élargi |
| Absence d’information immédiate | Étude au cas par cas |
Ces cas nécessitent des preuves concrètes. Le certificat médical reste l’élément central pour établir la date et le lien avec le travail.
Comment déclarer un accident de travail étape par étape ?
La procédure suit un enchaînement précis. Chaque étape sécurise la reconnaissance.
- informer l’employeur rapidement
- consulter un médecin pour établir un certificat
- transmettre les informations à l’entreprise
- vérifier la déclaration auprès de la caisse
Le médecin joue un rôle clé. Il décrit la blessure, la date et les circonstances. Ce document permet d’ouvrir le dossier.
Quels documents faut-il fournir pour déclarer un accident de travail ?

Le dossier repose sur plusieurs éléments concrets. Ils permettent d’éviter les contestations.
| Document | Utilité |
|---|---|
| Certificat médical | Décrit la blessure |
| Déclaration employeur | Lance la procédure |
| Attestation de salaire | Calcule l’indemnisation |
| Témoignages | Confirment les faits |
Ces documents doivent être cohérents entre eux. Une incohérence ralentit l’analyse et peut entraîner un refus.
Que faire si l’employeur refuse de déclarer l’accident ?
Un refus ne bloque pas la procédure. Le salarié peut agir directement auprès de la caisse.
La démarche consiste à envoyer une déclaration personnelle avec les preuves disponibles. La caisse examine alors la situation sans passer par l’entreprise.
Cette solution protège les droits et permet d’éviter une perte de prise en charge. La preuve du lien avec l’activité reste déterminante.